Casa Cultura Balsapintada
Balsapintada Cultural Center
La rehabilitación de la Casa de la Cultura de Balsapintada, enmarcada en el Plan PIREP y en los conceptos de la Nueva Bauhaus Europea, transforma el antiguo edificio en el auténtico corazón cívico del municipio. En un pueblo de 1.719 habitantes, la intervención es más que un edificio ya que provoca que la plaza y los nuevos espacios se consoliden como el principal lugar de encuentro social y cultural, un espacio de referencia compartido por todas las generaciones. El proceso participativo previo a la intervención definió un objetivo claro: acercar el edificio al ciudadano, hacerlo más abierto, amable y activo, de modo que pueda albergar de forma natural actividades culturales, lúdicas, festivas y comunitarias durante todo el año.Arquitecto Alicante Valencia Elche Albacete Arquitectos Architects
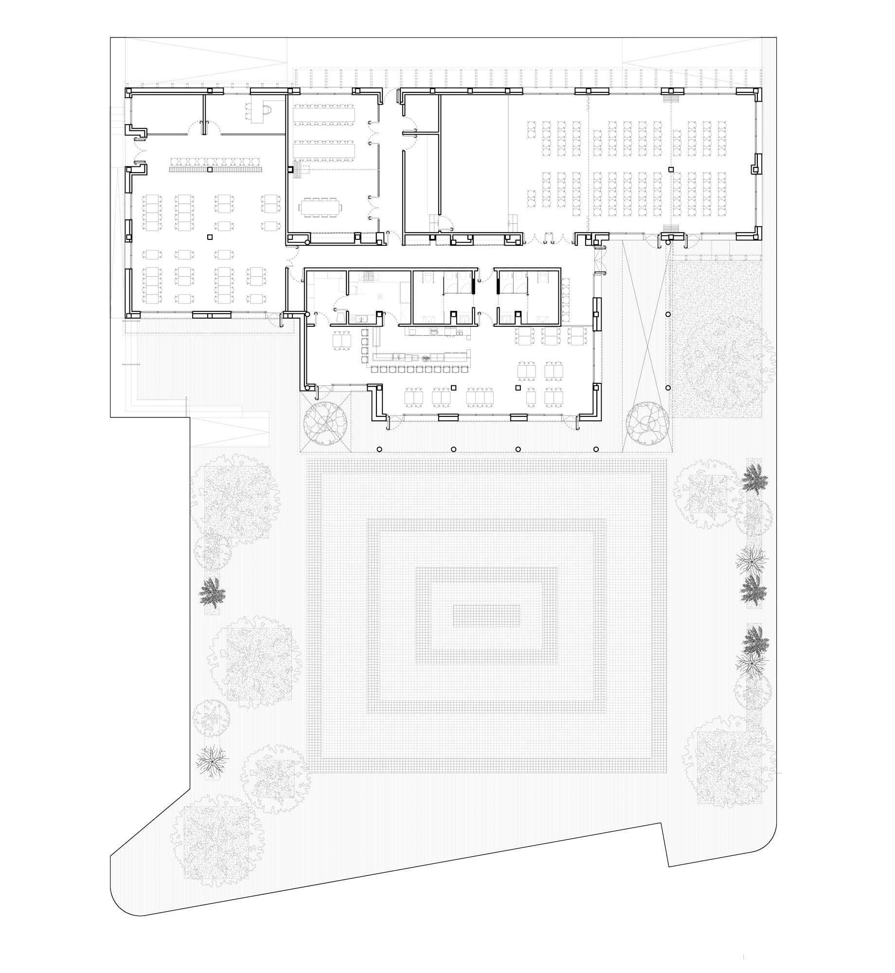
Arquitectónicamente, la propuesta unifica los volúmenes existentes mediante una nueva envolvente ligera que actúa como doble piel. Un plano continuo de chapa perforado de tonos suaves y translucidez controlada, envuelve el edificio otorgándole una imagen unitaria y contemporánea. Esta piel se separa puntualmente del volumen original para generar un gran pórtico de acceso y zonas de sombra, configurando una plaza urbana que extiende la vida interior hacia el espacio público, reforzando la identidad de la intervención como centro neurálgico del pueblo.
La intervención en la envolvente no es solo estética: mejora el comportamiento bioclimático, filtra la luz y protege del soleamiento directo, reduciendo la demanda energética. En el interior, los espacios se reorganizan con criterios de flexibilidad mediante divisiones móviles que permiten usos simultáneos en el salón principal, y se completa la digitalización del edificio (control de accesos, gestión energética, configurando un equipamiento contemporáneo, NZEB, accesible y profundamente humano. La luz natural, la vegetación y el uso de materiales naturales refuerzan la sensación de bienestar y pertenencia, alineando el proyecto con estándares de diseño centrado en la salud y el confort de las personas.
La Casa de la Cultura es otro ejemplo de reutilización adaptativa: en lugar de demoler y construir de nuevo, se aprovecha la estructura existente, su huella urbana y su carga simbólica, actualizándolas con criterios de sostenibilidad, eficiencia y resiliencia. Esta estrategia reduce de forma significativa el impacto ambiental asociado a la obra nueva y, al mismo tiempo, prolonga su vida útil. La intervención demuestra cómo transformar un equipamiento obsoleto en un nuevo centro de gravedad social, inclusivo y sostenible, convirtiendo la reutilización del patrimonio construido en una herramienta clave para el futuro de nuestras ciudades y pueblos.
- Estado Construido
- Cliente Ayuntamiento Fuente Álamo
- Localización Balsapintada (Fuente Álamo, Murcia)
- Fotografía Milena Villalba






































